FCB-Museum

St. Jakobs-Strasse, Basel (CH)

Umbau und Sanierung

Gestaltung, Planung, Ausführung
Eröffnung 2027

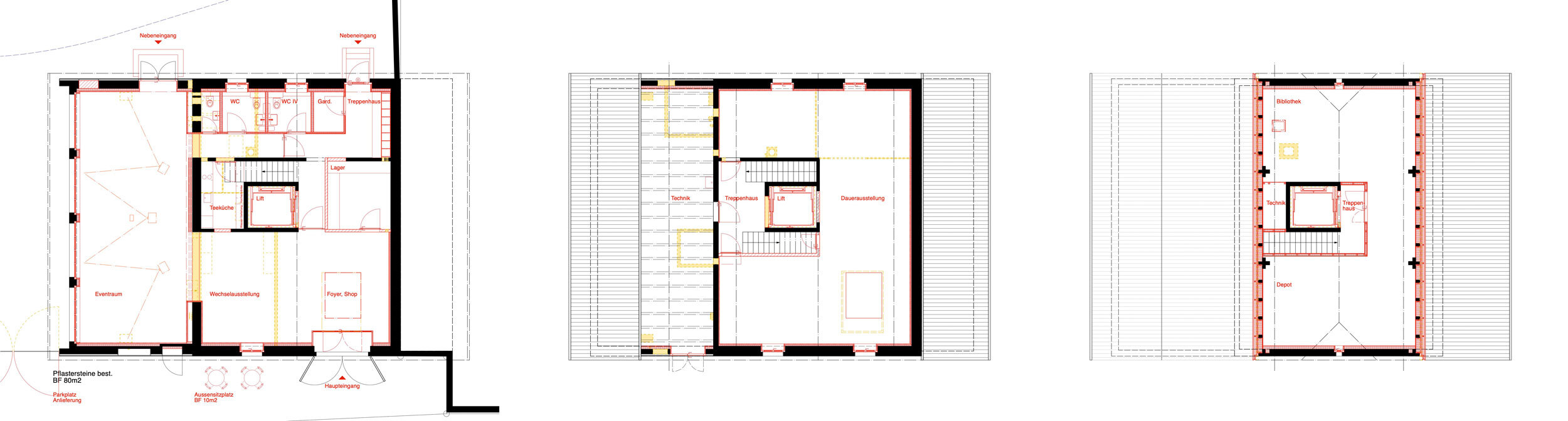
Das Museum FC Basel 1893 ist ein Netzwerk von Akteur:innen, die in verschiedenster Form im Bereich der Kultur und Geschichte des FC Basel 1893 aktiv sind. Die ehemalige Zehntenscheune im St. Jakob, wo Fussball seit 1954 stattfindet und gelebt wird, ist Standort für das neue FCB-Museum. Das Gebäude bleibt in seinem äusseren Erscheinungsbild weitgehend erhalten, da es unter dem Dorf- und Stadtbildschutz steht. Durch eine gezielte, zurückhaltende Sanierung wird es für die Nutzung als Museum angepasst. Der einfache Werkhofcharakter, welcher Leitgedanke des Museums ist, bleibt bewusst bestehen. Die Sanierung umfasst energetische Verbesserungen wie Innendämmung, neue Fenster und ein erneuertes Dach.

Auftraggeberin: Stiftung Museum FC Basel 1893, Basel
Eigentümerin: Christoph Merian Stiftung, Basel

Klein Fcb Arch 011
Klein Fcb Arch 010
Hinterhof
Klein Fcb Arch 005
Erdgeschoss
Klein Fcb Arch 006
Erdgeschoss
Klein Fcb Arch 008
Obergeschoss
Klein Fcb Arch 013
Treppenhaus
Klein Fcb Arch 012
Dachgeschoss
Klein Fcb Arch 004
Querschnitt
Klein Fcb Szeno 008
Grundriss, Erdgeschoss, Dachgeschoss